Moon reflexes faza II

Blocul C9

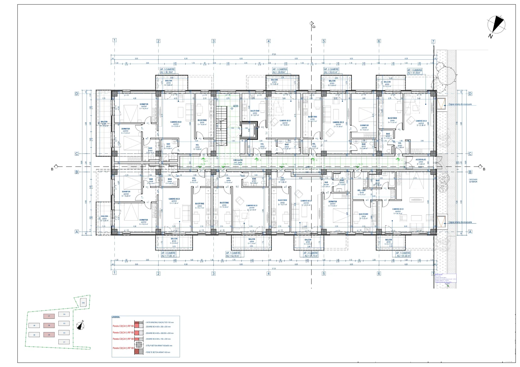
Demisol

Ap 1

Etaj: Demisol

Suprafață: 80.18

Balcon: 16.21

Ap 2

Etaj: Demisol

Suprafață: 77.99

Balcon: 12.47

Ap 3

Etaj: Demisol

Suprafață: 42.13

Balcon: 6.58

Ap 4

Etaj: Demisol

Suprafață: 57.74

Tersasă: 67.89

Ap 5

Etaj: Demisol

Suprafață: 61

Tersasă: 69.37

Ap 6

Etaj: Demisol

Suprafață: 51.61

Tersasă: 47.87

Ap 7

Etaj: Demisol

Suprafață: 55.43

Tersasă: 64.44

Ap 8

Etaj: Demisol

Suprafață: 39.85

Tersasă: 26.26

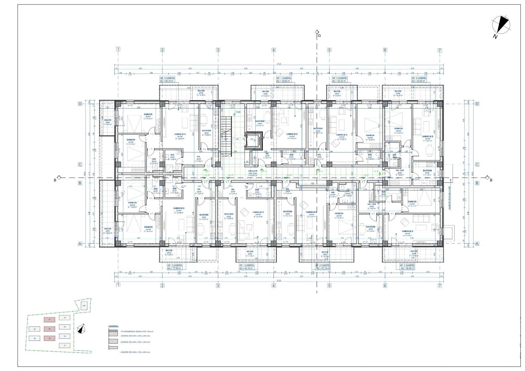
Parter

Ap 9

Etaj: Parter

Suprafață: 80.18

Balcon: 17.72

Ap 10

Etaj: Parter

Suprafață: 77.99

Balcon: 12.51

Ap 11

Etaj: Parter

Suprafață: 42.16

Balcon: 7.15

Ap 12

Etaj: Parter

Suprafață: 57.74

Balcon: 5.28

Ap 13

Etaj: Parter

Suprafață: 61

Balcon: 5.12

Ap 14

Etaj: Parter

Suprafață: 41.53

Balcon: 5.12

Ap 15

Etaj: Parter

Suprafață: 55.43

Balcon: 5.36

Ap 16

Etaj: Parter

Suprafață: 39.85

Balcon: 5.85

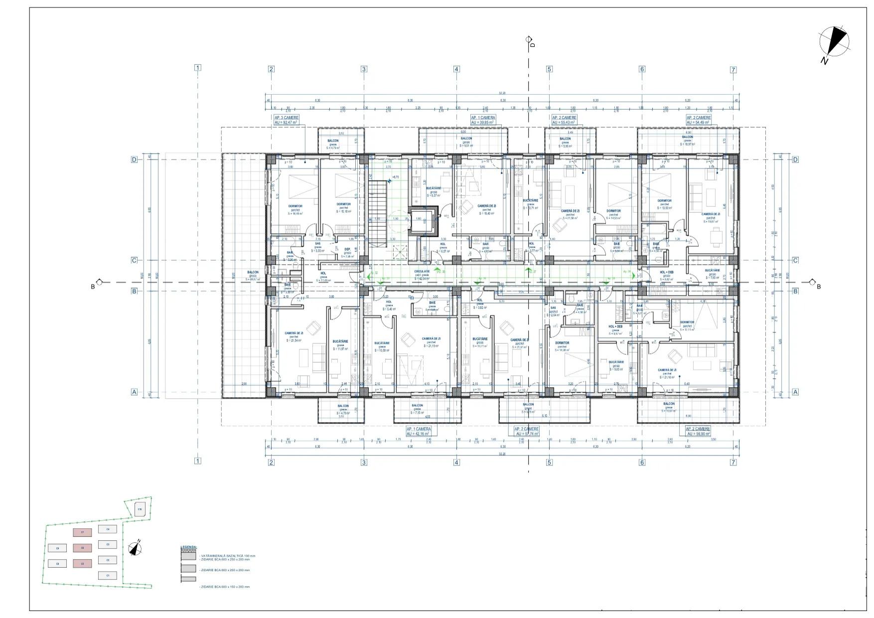
Etaj 1

Ap 17

Etaj: 1

Suprafață: 80.18

Balcon: 16.74

Ap 18

Etaj: 1

Suprafață: 77.99

Balcon: 18.61

Ap 19

Etaj: 1

Suprafață: 42.16

Balcon: 7.15

Ap 20

Etaj: 1

Suprafață: 57.74

Balcon: 9.75

Ap 21

Etaj: 1

Suprafață: 56.9

Balcon: 10.97

Ap 22

Etaj: 1

Suprafață: 54.49

Balcon: 10.97

Ap 23

Etaj: 1

Suprafață: 55.43

Balcon: 5.36

Ap 24

Etaj: 1

Suprafață: 39.85

Balcon: 9.51

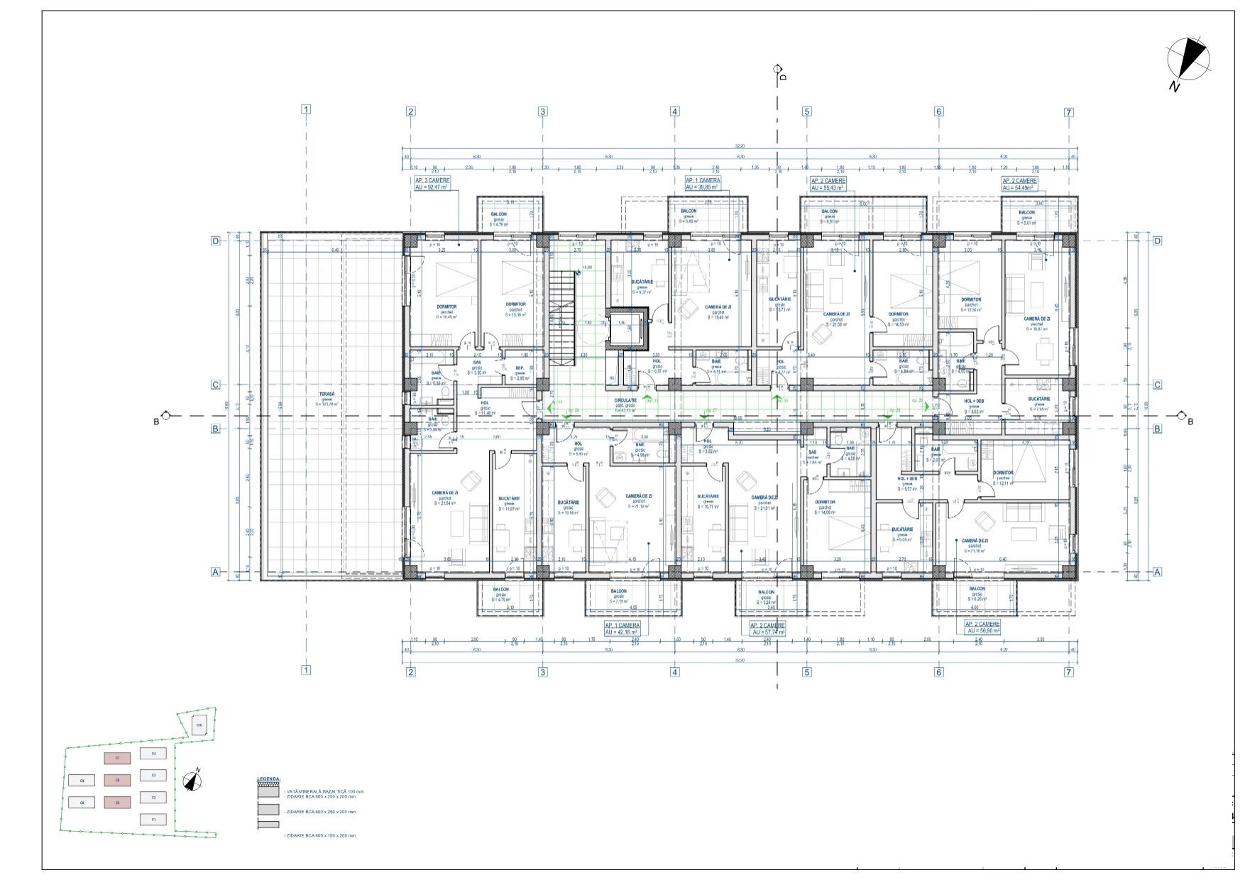
Etaj 2

Ap 25

Etaj: 2

Suprafață: 92.47

Balcon: 111.34

Ap 26

Etaj: 2

Suprafață: 42.16

Balcon: 7.15

Ap 27

Etaj: 2

Suprafață: 57.74

Balcon: 5.28

Ap 28

Etaj: 2

Suprafață: 56.9

Balcon: 6.26

Ap 29

Etaj: 2

Suprafață: 54.49

Balcon: 5.61

Ap 30

Etaj: 2

Suprafață: 55.43

Balcon: 9.51

Ap 31

Etaj: 2

Suprafață: 39.85

Balcon: 5.85

Etaj 3

Ap 32

Etaj: 3

Suprafață: 92.47

Balcon: 56.06

Ap 33

Etaj: 3

Suprafață: 42.16

Balcon: 7.15

Ap 34

Etaj: 3

Suprafață: 57.75

Balcon: 9.75

Ap 35

Etaj: 3

Suprafață: 56.9

Balcon: 10.97

Ap 36

Etaj: 3

Suprafață: 54.49

Balcon: 10.97

Ap 37

Etaj: 3

Suprafață: 55.43

Balcon: 5.36

Ap 38

Etaj: 3

Suprafață: 39.85

Balcon: 9.51

Facilități

Încălzire în pardoseală cu controler digital pe fiecare încăpere

Finisaje de cea mai bună calitate

Trepte de granit

Tamplarie pvc tripan

Izolație termincă de înaltă performanță cu vată bazaltică

Sistem de climatizare

Eficiență energetică

Parcare subterană

Locație ultracentrală, la 5.3km de Palas Mall.

Balustrade de sticlă securizată

Call Now Button